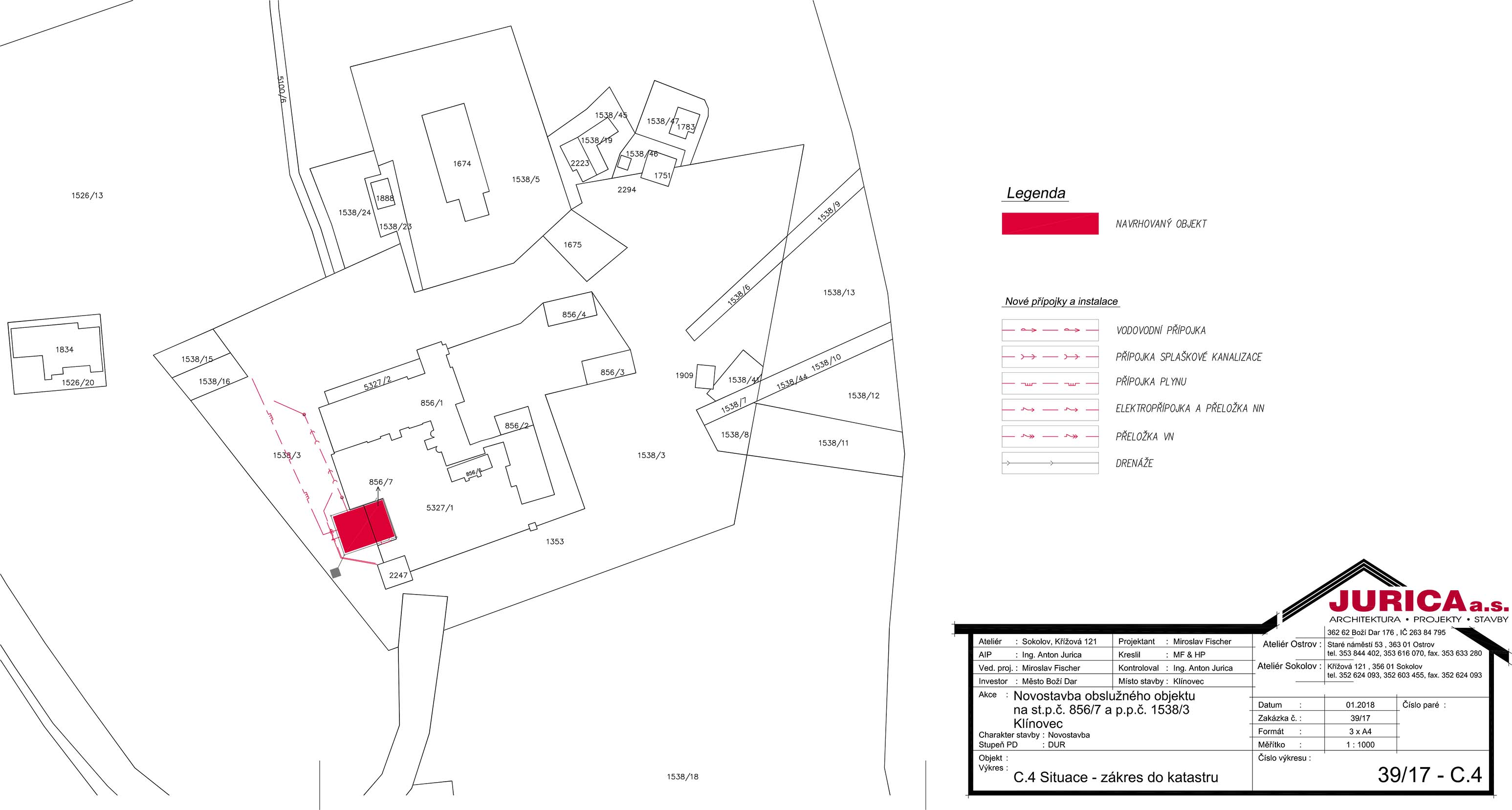
Novostavba obslužného objektu Klínovec


V ateliéru Sokolov naši projektanti dokončují projektovou dokumentaci k územnímu řízení, stavebnímu povolení a realizaci stavby „Novostavba obslužného objektu Klínovec“.  Investorem této akce je Město Boží Dar.